Mexen Tomas zlewozmywak granitowy 2-komorowy z baterią kuchenną Savita, czarny/złoty metalik - 6516-75-672601-00

6516-75-672601-00
215671
307.85
Оптовые цены:
Кол-во
2+
3+
Цена
292.46
277.07
Получить в магазине 30.12.2025
+
Отложить
Категория / производитель
Стоимость и сроки доставки:
Получить в магазине 30.12.2025 Бесплатная доставка
Стоимость и сроки доставки:
Riga
К сожалению, мы не нашли вариантов доставки до вашего местоположения. Свяжитесь с нами, и мы постараемся вам помочь.
Варианты оплаты
  • Информация о доставке
  • Оплата
  • Возвраты
Произволитель
Mexen
Цвет
Чёрный
Найти похожие

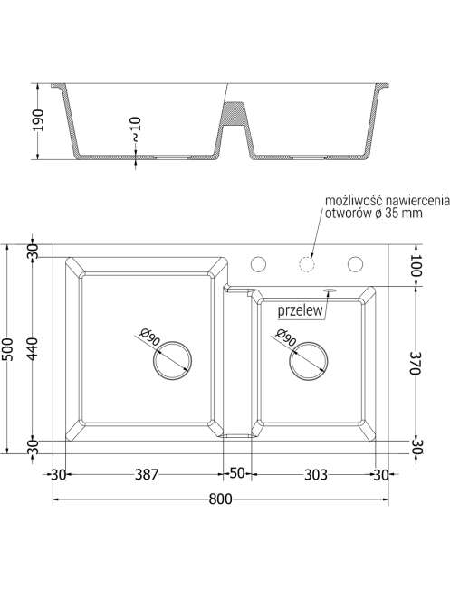
Dane techniczne:

Zlewozmywak:

Rozmiar: 800x500x190 mm

Głębokość komory: 180 mm (większa), 180 mm (mniejsza)

Wymiary komory: 440x387 mm (większa), 370x303 mm (mniejsza)

Średnica odpływu: ø90 mm

Typ: 2-komorowy

Rodzaj: Wpuszczany w blat

Kolor: Czarny/Złoty metalik

Wykończenie syfonu: Chrom

Materiał: Granit (80% kruszywo granitowe 20% żywice)

Otwór przelewowy: Tak

Otwory: ( bateria, automat ) 2

Wysoka odporność na zarysowania i przebarwienia

Odporność na szok termiczny

Powierzchnia ułatwiająca czyszczenie

Jeden dodatkowy podfrezowany otwór do samodzielnego wybicia ø35

Bateria kuchenna:

Materiał: Mosiądz

Kolor: Chrom

Głowica: Ceramiczna

Perlator: Tak

Typ: Jednouchwytowa

Wysokość baterii: 410 mm

Zasięg wylewki: 231 mm


Похожие товары